案例风格
现代简约
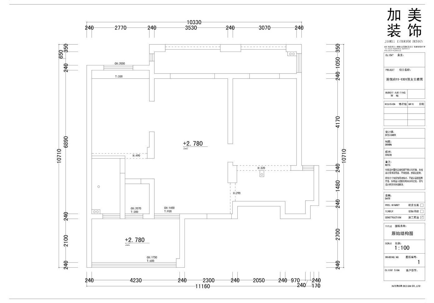
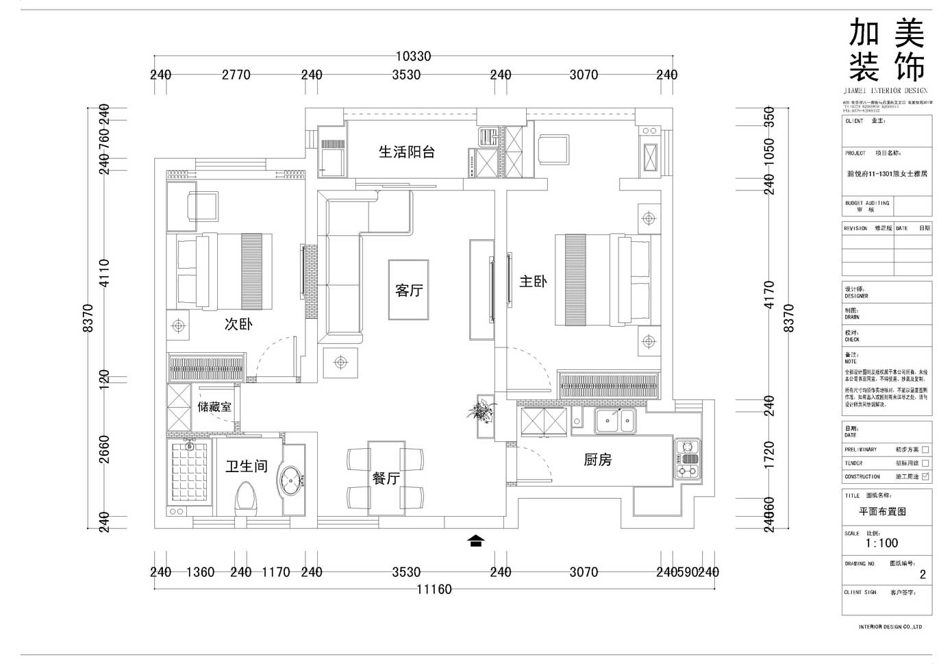
案例户型
普通住宅
案例面积
89
楼盘名称
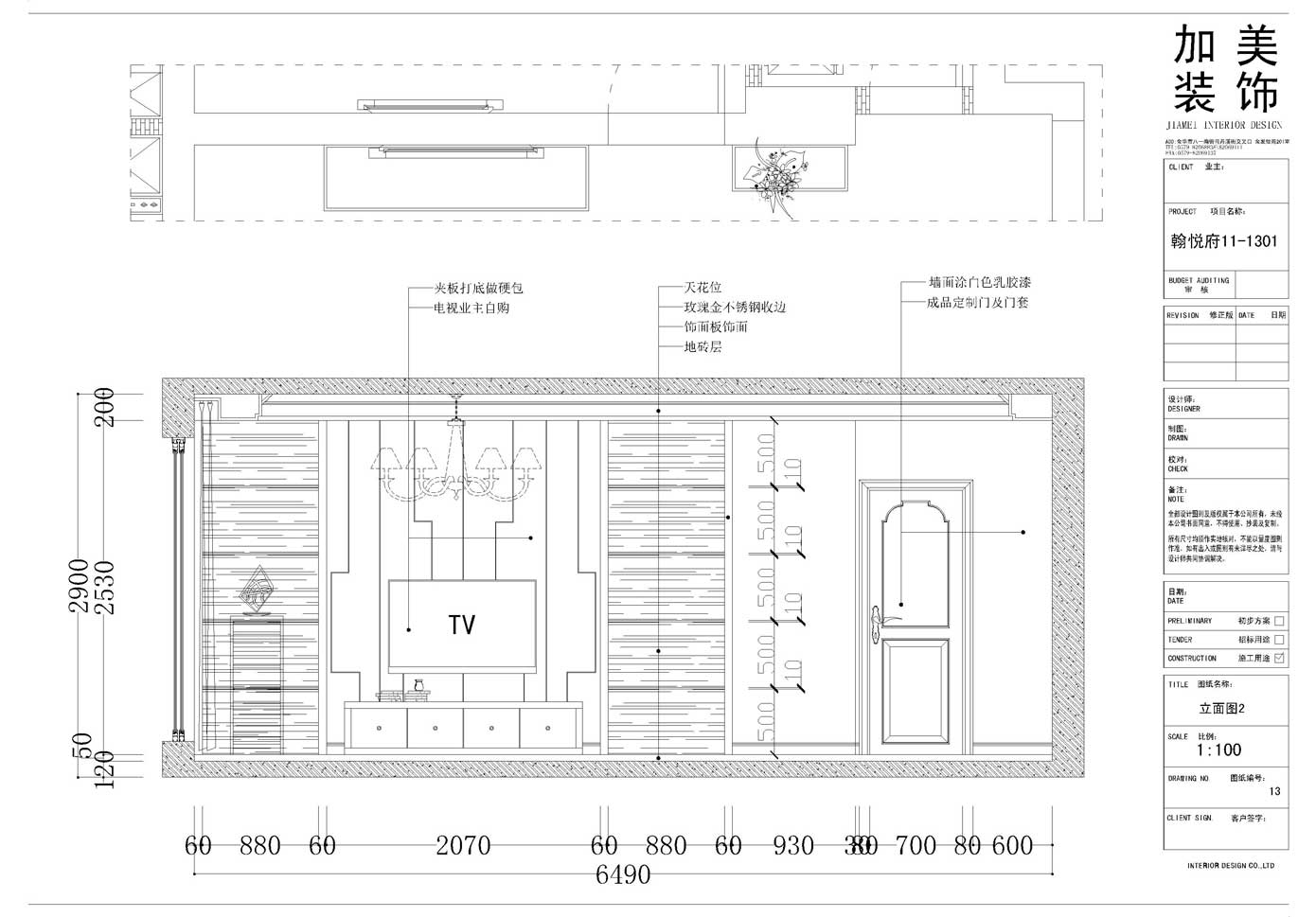
瀚悦府
主设计师
俞学腾
案例造价
8万
现代简约风格用几何线条修饰,色彩明快跳跃,外立面简洁流畅,以波浪、架廊式挑板或装饰线、带、块等异型屋顶为特征,立面立体层次感较强,外飘窗台外挑阳台或内置阳台,合理运用色块色带处理。 
本案例设计师简介

姓名:俞学腾

职位:主任设计师

确认报名
相关案例
绿城御园
外滩楼王 270平 新中式风格
仙源 300平 简欧风格
缤虹星城 600平

30秒预测家装费用

房屋户型
楼盘信息
套内面积
装修风格
装修套系
您的称呼
手机号码
短信验证码
获取验证码
智能系统报价
人工精准报价
快速导航